Description
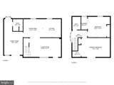
This home would make a very nice family compound. The main house is 4-bedrooms, 2 1/2 baths, family room, dining room, Florida room, study and remodeled kitchen. The attached accessory dwelling includes 2-bedrooms, 2-full baths, combo kitchen/dining, and family room. There is a large detached pole building for vehicles or property maintenance equipment. The house sits nicely on a very usable, gently rolling lot which would make a nice property for a horse. There is plenty of area for outdoor celebrations! It's also located in a convenient location for commuters.
-
6BEDS
-
3.16ACRES
-
4BATHS
-
11/2 BATHS
-
4,547SQFT
-
$132$/SQFT
Description
This home would make a very nice family compound. The main house is 4-bedrooms, 2 1/2 baths, family room, dining room, Florida room, study and remodeled kitchen. The attached accessory dwelling includes 2-bedrooms, 2-full baths, combo kitchen/dining, and family room. There is a large detached pole building for vehicles or property maintenance equipment. The house sits nicely on a very usable, gently rolling lot which would make a nice property for a horse. There is plenty of area for outdoor celebrations! It's also located in a convenient location for commuters.
Related Properties
©2025 Bright MLS, All Rights Reserved. IDX information is provided exclusively for consumers' personal, non-commercial use and may not be used for any purpose other than to identify prospective properties consumers may be interested in purchasing. Some properties which appear for sale may no longer be available because they are for instance, under contract, sold, or are no longer being offered for sale. Information is deemed reliable but is not guaranteed accurate by the MLS or JT Whitney Homes | Long & Foster. Some real estate firms do not participate in IDX and their listings do not appear on this website. Some properties listed with participating firms do not appear on this website at the request of the seller. Data last updated: 2025-11-09T21:52:00.823.
