Description
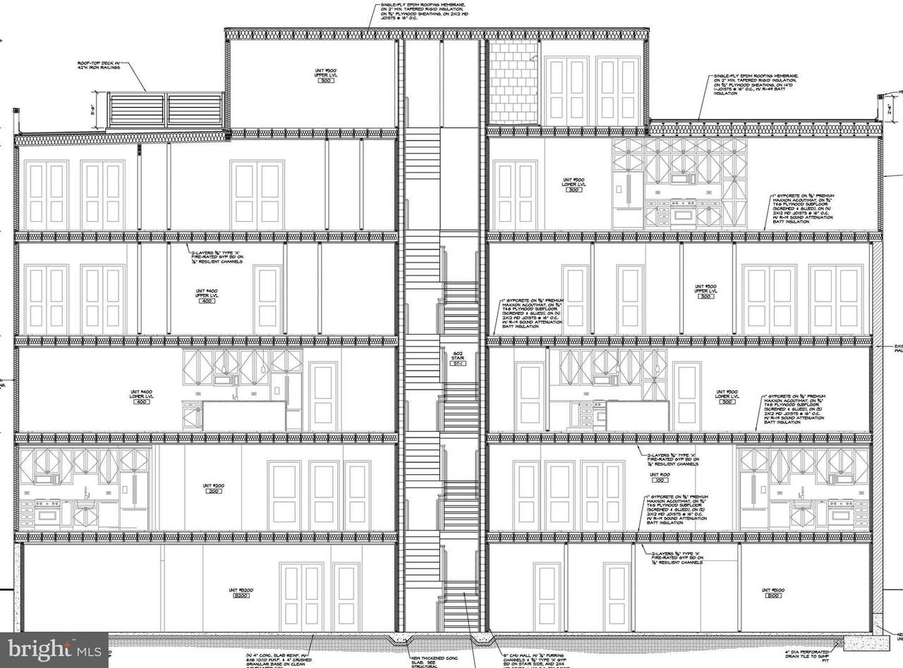
Opportunity Zone. MU-4 zoned rehab property to be delivered with stamped plans and approved permits for 7-unit buildout in Petworth on the hot Kennedy Street Corridor. Perfect for condo conversion. Approved plans are for buildout of a 5-level luxury building plus penthouse, as follows: (4) 1BR/1BA, (1) 2-level 1BR/2BA with Den and loft, (1) 2-level 2BR/2BA and (1) 2-level 3BR/2.5BA. This asset is located in an Opportunity Zone with lots of development in the area and is eligible for significant federal tax benefits for redevelopment investors. The architectural plans are available upon request.
-
0BEDS
-
0.06ACRES
-
0BATHS
-
01/2 BATHS
-
1,580SQFT
-
$630$/SQFT
Description
Opportunity Zone. MU-4 zoned rehab property to be delivered with stamped plans and approved permits for 7-unit buildout in Petworth on the hot Kennedy Street Corridor. Perfect for condo conversion. Approved plans are for buildout of a 5-level luxury building plus penthouse, as follows: (4) 1BR/1BA, (1) 2-level 1BR/2BA with Den and loft, (1) 2-level 2BR/2BA and (1) 2-level 3BR/2.5BA. This asset is located in an Opportunity Zone with lots of development in the area and is eligible for significant federal tax benefits for redevelopment investors. The architectural plans are available upon request.
©2026 Bright MLS, All Rights Reserved. IDX information is provided exclusively for consumers' personal, non-commercial use and may not be used for any purpose other than to identify prospective properties consumers may be interested in purchasing. Some properties which appear for sale may no longer be available because they are for instance, under contract, sold, or are no longer being offered for sale. Information is deemed reliable but is not guaranteed accurate by the MLS or JT Whitney Homes | Long & Foster. Some real estate firms do not participate in IDX and their listings do not appear on this website. Some properties listed with participating firms do not appear on this website at the request of the seller. Data last updated: 2026-02-13T16:55:18.13.
