Description
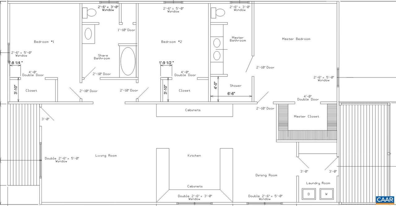
New construction! More pictures coming soon. Enjoy one-level living with this custom built home. Meticulously crafted, every detail has been thoughtfully planned with you in mind. This home features a warm and inviting flow for convenience and functionality. From the welcoming front porch, the open concept design in the main living space is great for entertaining and everyday living. The primary suite is located at the back of the home for privacy and tranquility, and features a generous-sized bathroom and walk-in closet. The kitchen features granite countertops and has an easy flow to the back deck for entertaining. Sod has recently been installed, and the lot is deep, making plenty of room for pets and play. The expected completion date for the home is 12/1/25. Conveniently located to Delphine Avenue, Rte. 250, downtown Waynesboro, and I-64, come see it today!,Granite Counter,Painted Cabinets
-
3BEDS
-
0.23ACRES
-
2BATHS
-
01/2 BATHS
-
1,584SQFT
-
$193$/SQFT
School Information
Description
New construction! More pictures coming soon. Enjoy one-level living with this custom built home. Meticulously crafted, every detail has been thoughtfully planned with you in mind. This home features a warm and inviting flow for convenience and functionality. From the welcoming front porch, the open concept design in the main living space is great for entertaining and everyday living. The primary suite is located at the back of the home for privacy and tranquility, and features a generous-sized bathroom and walk-in closet. The kitchen features granite countertops and has an easy flow to the back deck for entertaining. Sod has recently been installed, and the lot is deep, making plenty of room for pets and play. The expected completion date for the home is 12/1/25. Conveniently located to Delphine Avenue, Rte. 250, downtown Waynesboro, and I-64, come see it today!,Granite Counter,Painted Cabinets
Related Properties
©2025 Bright MLS, All Rights Reserved. IDX information is provided exclusively for consumers' personal, non-commercial use and may not be used for any purpose other than to identify prospective properties consumers may be interested in purchasing. Some properties which appear for sale may no longer be available because they are for instance, under contract, sold, or are no longer being offered for sale. Information is deemed reliable but is not guaranteed accurate by the MLS or JT Whitney Homes | Long & Foster. Some real estate firms do not participate in IDX and their listings do not appear on this website. Some properties listed with participating firms do not appear on this website at the request of the seller. Data last updated: 2025-12-07T09:51:53.88.
